Dishwasher, Electric Water Heater, Range, Range Hood, Refrigerator
Architectural Style
Traditional
📝 Public Remarks
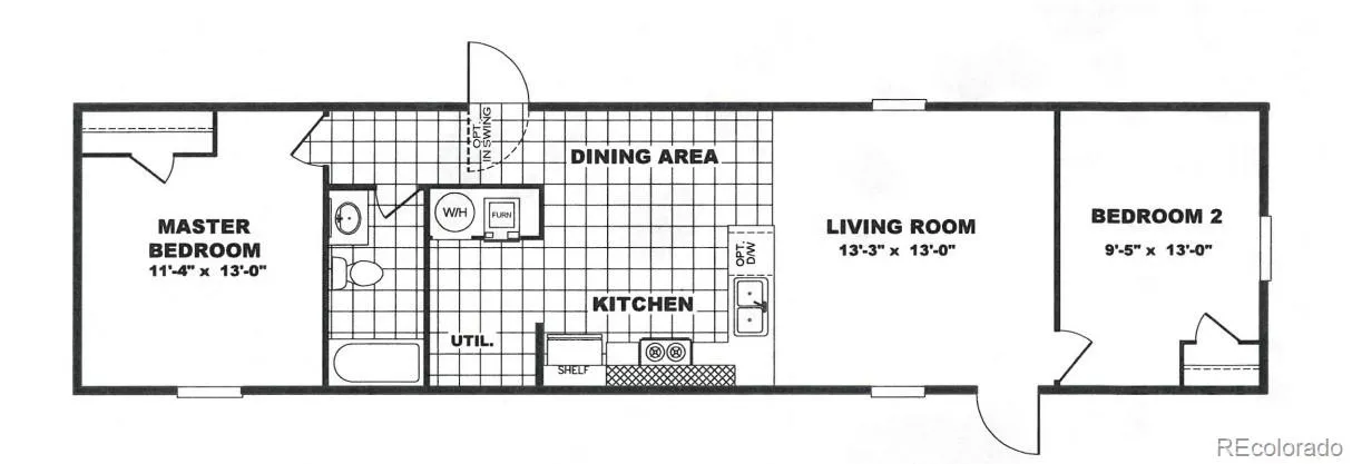
Model home never lived in. 2-bedroom and 1 bath, 55+ senior community living in well maintained environment. Lot rent includes water and sewer. There is a dog park and on-site laundry facility. Cats and small dogs allowed. Gated community for privacy. Easy access to public transportation. Buyers must be prequalified to buy and approved by the park management.
💰 Tax Information & Other Details
Tax Information
Tax Legal Description
MH Serial: BEL016040TX Year 2021 Make: Clayton
Original List Price
$74,696.00
Documents Available
Building Plans
Exclusions
None
Other Details
Directions
Take I 25 to Mulberry St. Go north on College to 1601 North College to Security Gate.